|
|
 |
内 房 線
安房鴨川 駅
歩約 10 分 |
|
住 宅 |
|
2,480万円 |
◎新築後未入居!
◎南庭広いです! |
★駐車スペース2台分!! ★通勤通学買物便利!! ★前原海水浴場徒歩圏!!
|
| 物件種別 |
中古住宅 |
都市計画 |
非線引き |
| 最適用途 |
住宅 |
用途地域 |
第一種住居地域 |
| 価 格 |
2480万円 |
建ぺい率 |
60% |
| 所 在 地 |
鴨川市横渚 |
容 積 率 |
200% |
| 交 通 |
内房線 安房鴨川駅 徒歩約10分 |
土地権利 |
所有権 |
| 土地面積 |
212.13u(約64.16坪) |
地 目 |
宅地 |
| 建物面積 |
96.88u(約29.30坪) |
接 道 |
南約4m道路 |
| 築年月日 |
令和2年12月築 |
設 備 |
東京電力・プロパン |
| 間 取 り |
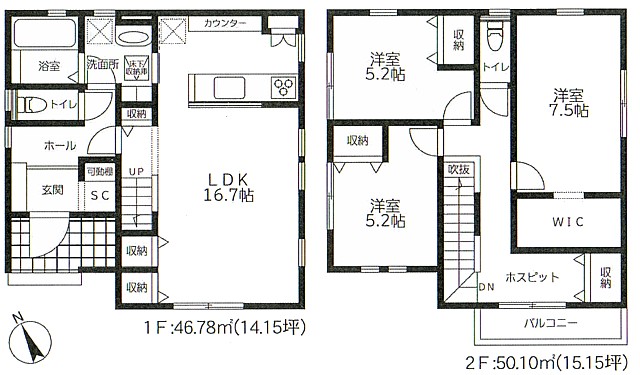
3SLDK |
〃 |
公営水道・浄化槽 |
| 現 況 |
空家 |
取引態様 |
媒介 |
| 引 渡 し |
即可 |
|
|
| その他の制限 |
|
| 備 考 |
○掲載途中に売却済・売止め・価格変更となる場合がございます。
○上記情報と現況が異なる場合は現況を優先致します。
|
| お問合せ |
田舎暮らしバンザイ事務局 043−223−7950 |
|
現 地 写 真 |
|
|
|
|
|

物 件
|
|

お庭入口。可愛い門扉がありました。
|
|
|

敷地に入ると建物が見えます。建物は新築後まだ
未入居でとても綺麗!
|
|

お庭はガーデニング・家庭菜園が可能です。
|
|
| |

玄関
|
|

まだ何もしていないので自由にアレンジ出来る!
|
|
| |

カラフルな外観で綺麗です!
|
|

買物はベイシアが約600m・コンビニは約250mと
近くて便利です。
|
|
| |

カーポートは2台分です!
|
|

前面道路は約4mセットバック済み
|
|
| |

海だって近いんですよ! リモートワークに如何ですか?!
|
|

| 間 取 図 【図面と現況が異なる場合は現況を優先致します】 |
|

| 配 置 図 【図面と現況が異なる場合は現況を優先致します】 |
|
|