|
現 地 写 真 |
|
|
|
|
|

平家建て、店舗のご紹介です。
|
|

圏央道長柄ICより車で約4分の、車の往来が多い立地。
|
|
|

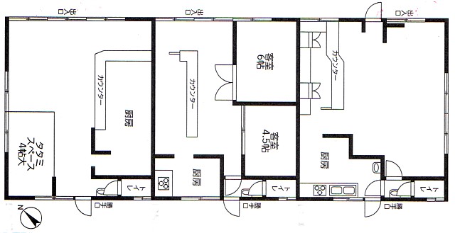
店舗は3室に分かれていて、それぞれに入口があります。
|
|

内外装リフォーム後のお引渡しで、大変綺麗になりますよ。
|
|
| |

前面道路
|
|

物件入口
|
|
| |

間口は広く、出入りがしやすいです。
|
|

北西約15m道路。
|
|
| |

駐車スペースは、砂利が敷かれています。
|
|

駐車スペースは広めで、多数駐車可能です!
|
|
| |

別方向から見る。
|
|

向かって右側の店舗から。
|
|
| |

北西側のお部屋から見て行きましょう。
|
|

左側にカウンター。
|
|
| |

右側には、畳スペースがある客室があります。
|
|

このカウンターは、元々ラーメン屋かな??
|
|
| |

ゆったりと食事が出来そうですね。
|
|

他にもテーブルが置けそうです。
|
|
| |

厨房
|
|

厨房
|
|
|

トイレは和式
|
|

中央の店舗入口。
|
|
|

各部屋に、カウンター、客室があります。
|
|

ん〜。。これは元々居酒屋だったのかな??
|
|
| |

カウンター内
|
|

客室・4.5畳 こちらは個室になっています。
|
|
| |

客室6畳
|
|

厨房にも良く光が入りますね。
|
|
| |

トイレ
|
|

向かって左角の店舗入口
|
|
| |

こちらは畳スペースはありませんでした。この部屋は事務所でも使用出来そうです!
|
|

カウンター
|
|
| |

備え付けの棚もあり、使い勝手が良さそうです。元々スナックっぽいね!
|
|

キッチンスペース
|
|
| |

トイレ 駐車スペースも広く、店舗や事務所など
色々な用途で活用出来そうです!!
|
|

| 間 取 図 【図面と現況が異なる場合は現況を優先致します】 |
|

| 配 置 図 【図面と現況が異なる場合は現況を優先致します】 |
|